1. Accueil
  2. Achat
  3. Achat Maison
  4. Achat Maison Maine-et-Loire (49)
  5. Achat Maison CHOLET (49300)

Maison à vendre 3 pièces - 73,25 m2 CHOLET - 49

Ref : 5733

225 000 €

  • Honoraires charge vendeur
maison à vendre - 3 pièces - 73.25 m2 - CHOLET - 49 - PAYS-DE-LOIRE - Century 21 Les Arcades
maison à vendre - 3 pièces - 73.25 m2 - CHOLET - 49 - PAYS-DE-LOIRE - Century 21 Les Arcades
maison à vendre - 3 pièces - 73.25 m2 - CHOLET - 49 - PAYS-DE-LOIRE - Century 21 Les Arcades
Envoyer un message
Message
Envoyer ce bien à un ami

Description

CHOLET - Proximité des Halles.
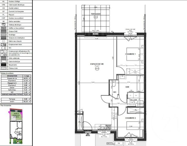
Dans une résidence neuve, maison traversante de plain-pied de 73 m² habitables avec entrée privative. Elle se compose d'une généreuse pièce de vie de 40 m², prolongée par un jardin et une terrasse à jouissance privative, idéal pour profiter des beaux jours ! Dans la partie nuit, 2 belles chambres avec placard, une salle d'eau avec WC séparés ainsi qu'un cellier.
Le logement dispose d'une place de stationnement privative en extérieur.
La maison sera disponible courant du mois de Juin 2026.
En plus, réduction de 9.000 € et frais de notaire offerts !
Rare sur le marché ; maison neuve de plain pied dans un environnement recherché !

Localisation

Laissez-nous vos coordonnées pour obtenir la localisation

Envoyer

Afficher sur la carte :

Demander la localisation

Vue globale

  • Surface totale : 73,3 m2
  • Surface habitable : 73,3 m2
  • Surface terrain : 140 m2
  • Nombre de pièces : 3
    • Pièce de vie (40,6 m2)
    • Chambre (12,1 m2)
    • Chambre (9 m2)
    • Cellier (2,7 m2)
    • Salle d'eau (5,2 m2)
    • WC (1,4 m2)
    • Dégagement (2,4 m2)

Équipements

Les plus

Terrasse

Jardin

Général

  • Chauffage : Aérothermie radiateur
  • Eau chaude : Pompe à chaleur (pac)
  • Double vitrage, plain pied
  • Clôture

À savoir

Copropriété

  • Nombre de Lots : 25
  • Charges courantes par an : 1000,0 €
  • Pas de procédure en cours

Les performances énergétiques

logement extrêmement performantlogement extrêmement peu performantconsommationémissions(énergie primaire)1007kWh/m2.ankg CO2/m2.anPassoire énergétique
* Dont émissions de gaz à effet de serre peu d'émissions de CO2 Émissions de CO2 très importantes kgCO 2 /m 2 .an 7

Date du DPE : 01/01/2026

Envoyer à un ami

Envoyer

Envoyer un message :

Envoyer

Créer votre alerte

Rappel de vos critères de recherche :

Erreur dans les critères envoyés

Limite d'alertes atteinte

Cette alerte existe déjà

Cette alerte est déjà enregistrée pour cette adresse email. Vous continuerez à recevoir les biens correspondant à vos critères.

Une erreur est survenue

Merci de réessayer ultérieurement.

Votre alerte a été créée

Vous recevrez les biens correspondant à vos critères.

logo vente privées

48h

d’avance sur
le marché

Prenez un temps d’avance sur le marché en profitant gratuitement des Ventes Privées CENTURY 21

Si ce n’est déjà fait, allez compléter le profil de votre compte afin de pouvoir recevoir en avant-première des biens exclusifs, réservés à nos clients pendant les 48 premières heures suivant leur commercialisation.

Nos agences proposent régulièrement des biens comme celui que vous cherchez

Ne ratez pas une opportunité, on vous alerte en priorité !

Êtes-vous actuellement propriétaire de votre bien ?
Créer une alerte
Je souhaite être alerté
Voir les biens correspondants